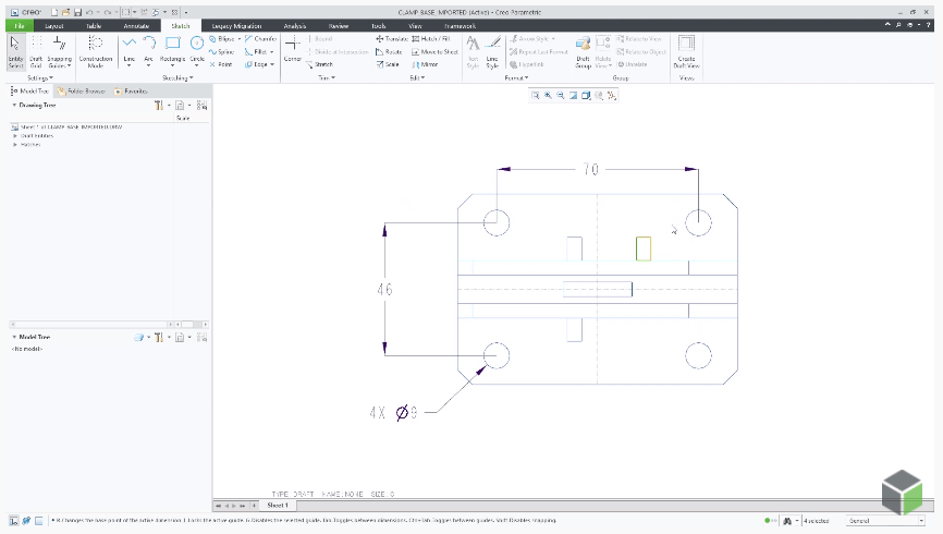
The new Create Draft View option allows you to select several entities (either created or imported) and convert them all into a new 2D draft view that could also be scaled.
This is useful when you import legacy drawings that have no model behind it, or if you have a collection of draft entities which you want to be treated as a view.
With this enhancement, you can also create relation between several draft views and show their hierarchy relation in the drawing tree.

Punditas AI Advisor for Creo
Punditas AI Advisor provides real-time guidance as you work in the Creo environment. Information on “how to use” a feature in Creo or best practices for working with Creo are presented within context, removing the need to guess or search for such information. Punditas AI driven content helps you leverage Creo to create your designs faster and with confidence. For example searching for “weld dashboard” in Punditas AI displays the following results –
Video Tutorials for Creating draft view in Punditas AI


Help Articles for Creating draft view in Punditas AI

Help Articles – Punditas AI Knowledge Graph with Search Results

Enhancements for Creating draft view in Punditas AI


Check out the Trial or Demo versions of Punditas AI
Demo version of Punditas AI
Signup for a Free Trial of Punditas AI
For more information about Punditas AI Advisor, visit our website at Punditas AI or contact us at contact@punditas.com
Leave a comment